★ proposta classificada em segundo lugar pela comissão julgadora
AUTORIA DO PROJETO: Adriano Couto, Denis Comandule
COLABORADORES: William Martinha
LOCAL: Piracicaba SP
PROJETO: 2019
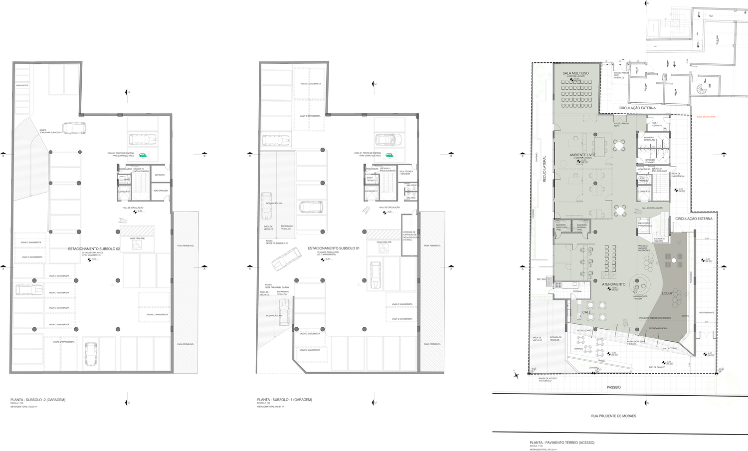
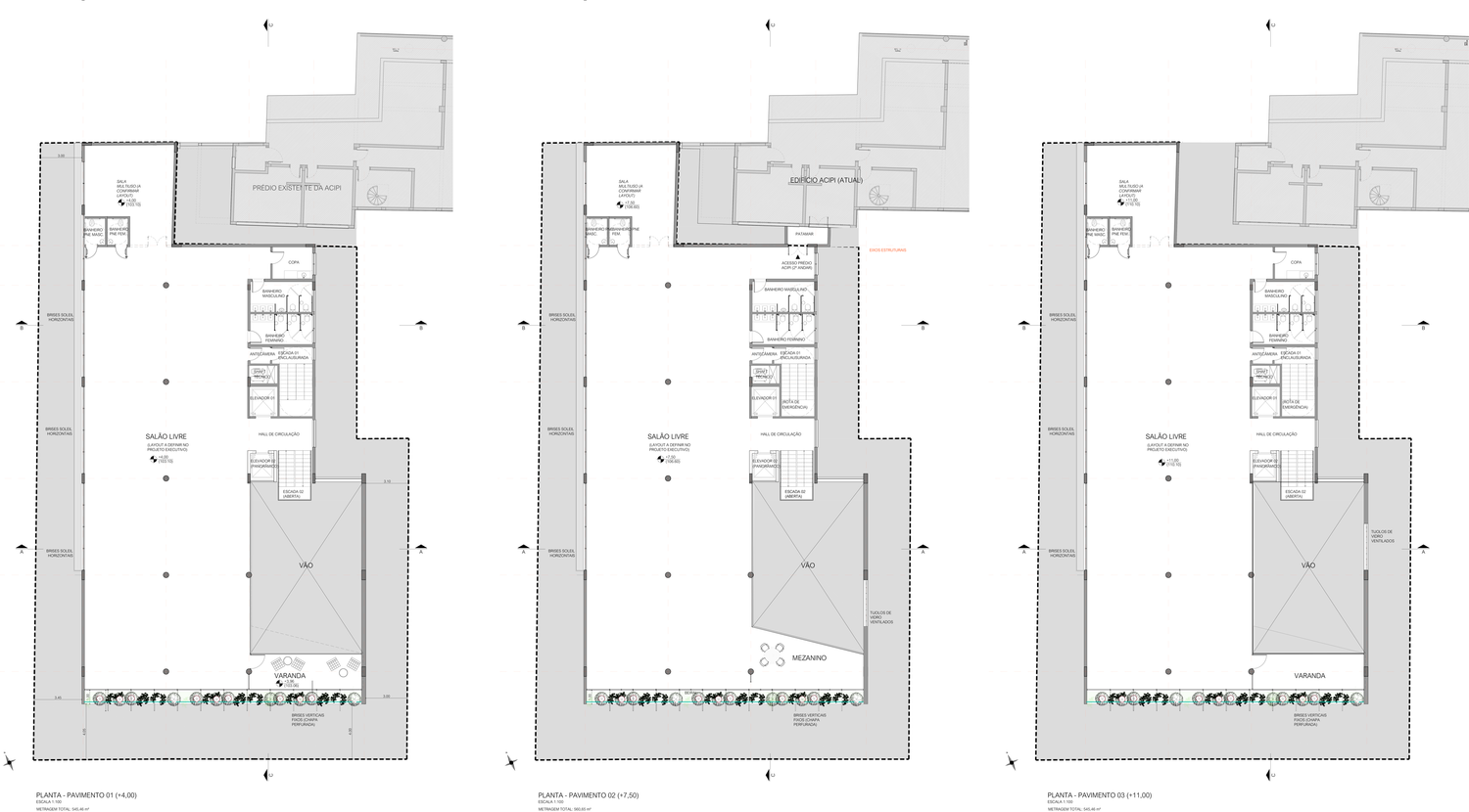
ÁREA: 2.308,59 m² (não considerando subsolos)
CONSULTORIA DE SUSTENTABILIDADE: Marina Ortigossa (PHOS consultoria)
CONSULTORIA ESTRUTURAL: MR2 Estruturas
CONSULTORIA DE ORÇAMENTO DE OBRA: Fábio Bassete (Bassete Engenharia)
COLABORADORES: William Martinha
LOCAL: Piracicaba SP
PROJETO: 2019
ÁREA: 2.308,59 m² (não considerando subsolos)
CONSULTORIA DE SUSTENTABILIDADE: Marina Ortigossa (PHOS consultoria)
CONSULTORIA ESTRUTURAL: MR2 Estruturas
CONSULTORIA DE ORÇAMENTO DE OBRA: Fábio Bassete (Bassete Engenharia)
A ACIPI é uma instituição de peso que se funde à própria história do desenvolvimento econômico de Piracicaba.
Dessa importância buscamos a inspiração para criar um edifício que contemplasse soluções inovadoras, ajudando a difundir a ACIPI também em nível regional, passando a ser uma vitrine econômica do município.
Definimos este projeto a partir de duas premissas elementares:
Dessa importância buscamos a inspiração para criar um edifício que contemplasse soluções inovadoras, ajudando a difundir a ACIPI também em nível regional, passando a ser uma vitrine econômica do município.
Definimos este projeto a partir de duas premissas elementares:
Criação das áreas de pavimento tipo contínuas e retas, favorecendo a flexibilidade do layout futuro dos ambientes de trabalho.
Criação de situações de integração visual entre os pavimentos e o térreo, garantindo maior índice de arejamento, iluminação e contato físico entre os colaboradores e associados.
Para garantir essas premissas, desenhamos um grande átrio interno com vão aberto, aproveitando o espaço do terreno à direita, onde este é mais irregular.
Rente ao alinhamento do terreno, praticamente ortogonal, projetamos plantas livres retangulares, que se repetem nos três andares de pavimento tipo, permitindo uma maior flexibilidade para o futuro layout das salas de trabalho. Este aspecto é reforçado pela escolha estrutural adotada, a laje nervurada, que permite maiores vãos livres e menor quantidade de pilares.
Rente ao alinhamento do terreno, praticamente ortogonal, projetamos plantas livres retangulares, que se repetem nos três andares de pavimento tipo, permitindo uma maior flexibilidade para o futuro layout das salas de trabalho. Este aspecto é reforçado pela escolha estrutural adotada, a laje nervurada, que permite maiores vãos livres e menor quantidade de pilares.
Este espaço pleno nos salões, sem reentrâncias ou corredores, foi também conquistado por conta do agrupamento de todo o bloco técnico e de circulação do prédio (que inclui banheiros, shaft, elevadores e escadarias) estrategicamente posicionados em linha na fachada leste do prédio. O posicionamento agrupado desses ambientes também tem o propósito de aprimorar a racionalidade da construção.